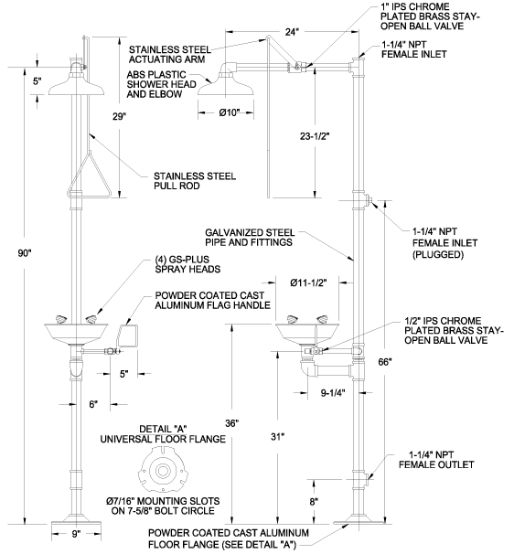
SS909 – Safety Sation with stay open shower valve and eye/face wash
SS909
Safety Sation with stay open shower valve and eyey/face wash and stainless steel bowl and stay-open ball valve
Download AutoCad Drawing and PDF
SS909.zip 477.64 Kb
Measurements may vary +/- 1/4″

